1st floor 1 bedroom apartment 52m2 in Polemidia., Limassol
For Sale / EUR 172.000 (VAT not included)
+357 99403589
1 BEDROOM APARTMENTS IN POLEMIDIA
The contemporary apartment building is located in a peaceful area of Polemidia. The place benefits from fast and easy access to Polemidia roundabout and all essential amenities.
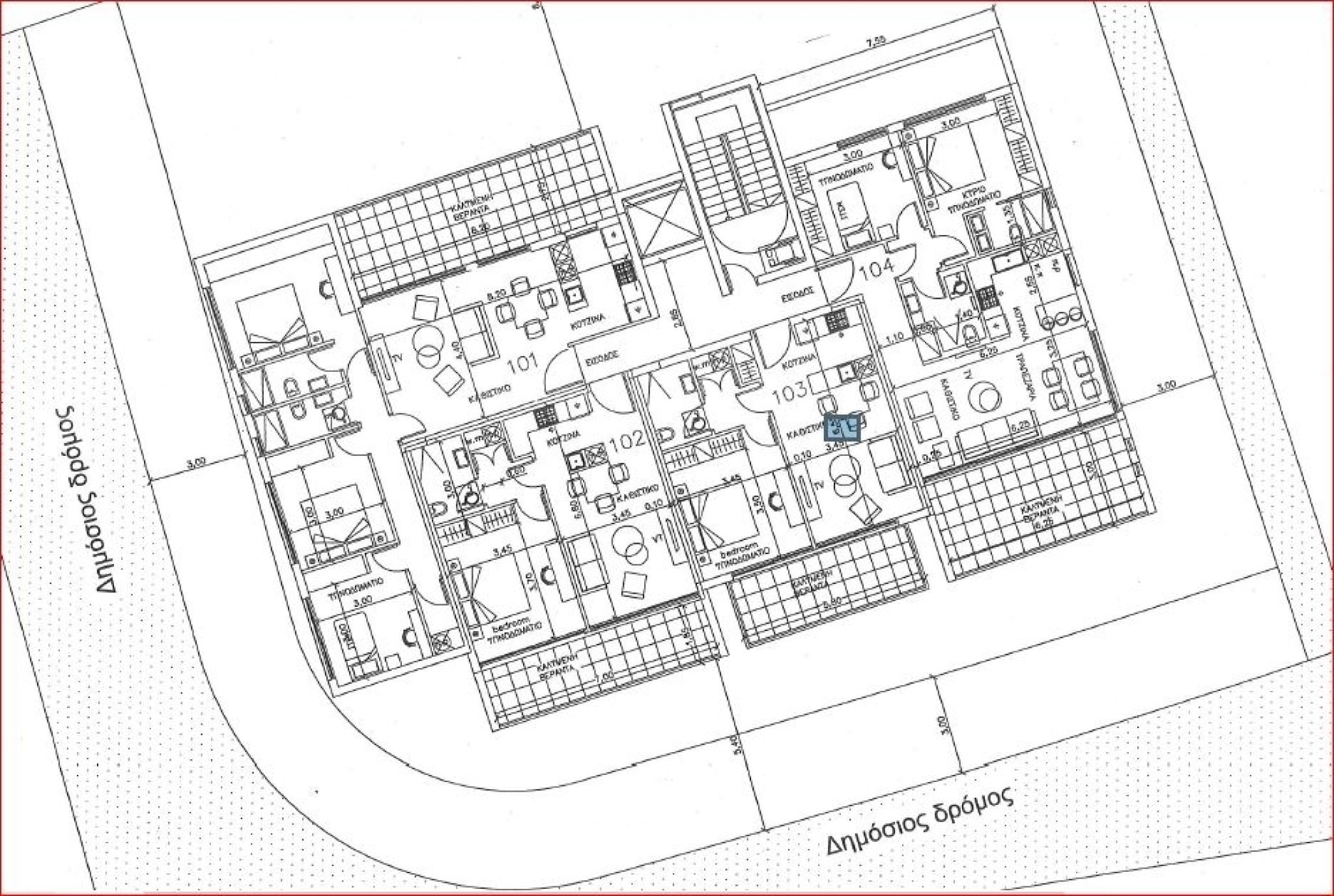
The building consists of 3 - storey and incorporates 12 apartments in total. The available 1 bedroom apartments are located on the first and third floors. Each apartment is spacious, functional, and comfortable. It comprises living and dining areas, an open plan kitchen, 1 well-sized bedroom, a bathroom, and a laundry room. The living area and the bedroom open up to a big covered veranda, which provides a refreshing shade to the interior and generates private outdoor spaces in each unit.
The delivery date of the building is Summer 2026.
Available apartments
1st floor
Apartment 102
Internal size: 52 sqm
Covered veranda: 13 sqm
Storage
Covered parking
The price: €172,000 plus Vat



