2 bedroom Link Detched house 120m2 in Trimiklini, Limassol
For Sale / EUR 250.000 (VAT not included)
+357 99403589
The modern beautiful 2-bedroom link-detached house is set in a forest of Trimiklini. The area is elevated and the property enjoys stunning views of the mountains and surrounding pine forest. The charming and serene location makes this house a great option for a peaceful and quality life offering serenity, clean air, and good microclimate. The plot is privileged and conveniently located with fast and easy access to the main roads. All the important amenities are in proximity.
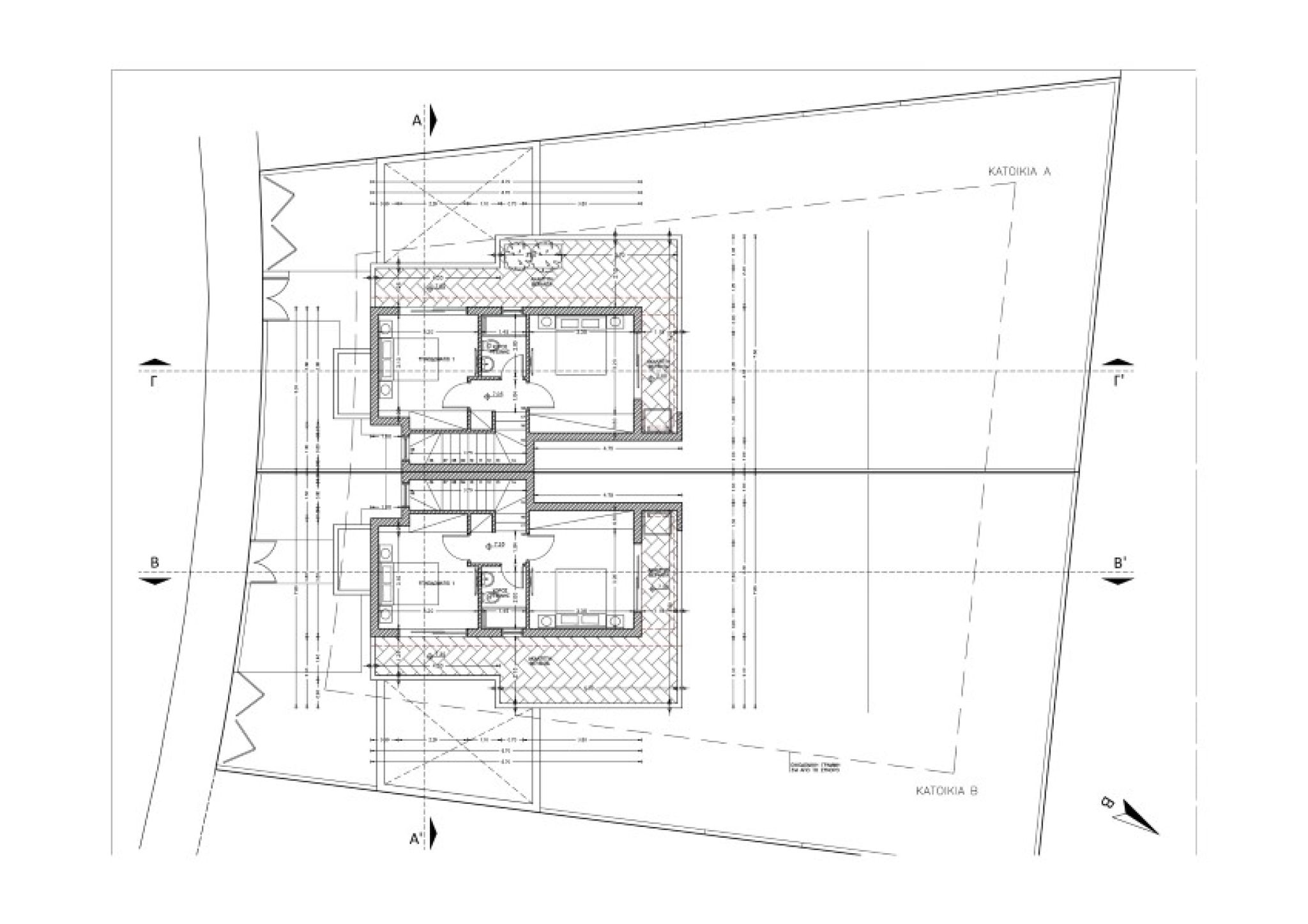
The contemporary design of the property is comfortable and functional. The ground floor, comprises a living area, an open-plan kitchen with a dining area, and guest toilette. On the first floor, there are 2 spacious bedrooms and a bathroom. The bedrooms are adjacent to a large partly covered veranda. The veranda offers picturesque and breath-taking views of nature.
The house enjoys a big garden that can be beautifully landscaped. Also, there is enough space for a private swimming pool.
The project consists of two link-detached houses. The property is under construction.
-Adjacent to the green area
-Panoramic Unobstructed Forest view
-Easy access to main roads
-Energy Efficiency Class A
-Big Garden
-Plot: 300 sqm
-Internal area: 120 sqm
A/C provision
Storage
Covered parking
Space for private swimming pool
Under Construction
High-quality finish
Delivery: June 2025
Driving time to Limassol - 25 minutes
Plus Vat








